MX
thiết kế nội thất chung cu
7/10/2023 1:28:13 AM
0
1519
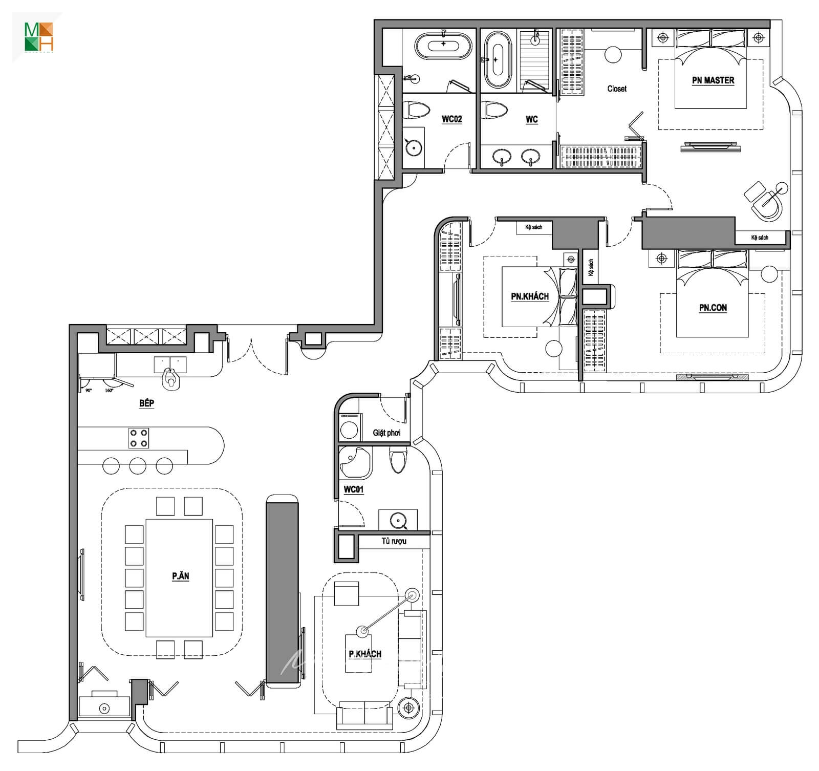
MoreHome chuyên Thiết kế nội thất chung cư cao cấp và thi công nội thất tại Landmark 81
Nguồn: https://thietkenoithat.com